COLMENA

DESCRIPCIÓN

Colmena Coworking es un espacio de oficina, ubicado en lo más alto de la Col. Roma, en la Ciudad de México. Se encuentran diferentes áreas, distribuido en 3 niveles, para trabajar cómodamente. La estética es aparente, estilo industrial, con grandes ventanas que permiten vistas alrededor de este antiguo barrio.

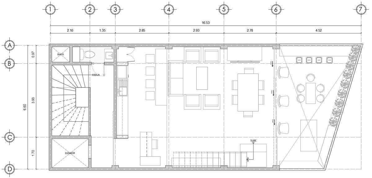
En la planta Baja se encuentran la recepción y áreas comunes como cocina-comedor, sala y mesa con sillas para sala de juntas a doble altura y terraza que te permitirá trabajar al aire libre con maravillosas vistas de la ciudad.

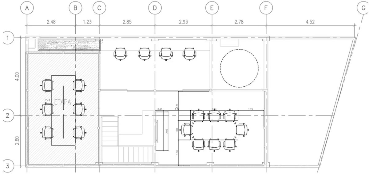
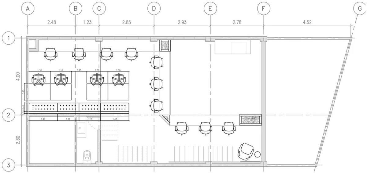
En el primer nivel que se maneja como tapanco, Colmena Coworking tiene dos áreas para trabajar en grupo (30 m2 y 10 m2), sanitario, mientras que en el tercer nivel se encuentra una oficina independiente para trabajo (23 m2), Sala de juntas con excelente iluminación natural con vistas panorámicas (21 m2) y Terraza

CÓDIGO: COLM.133 OFI11

UBICACIÓN: Av. Cuauhtémoc 133, Roma Nte., Cuauhtémoc, 06700 Ciudad de México, CDMX

ARRENDAMIENTO: Coworking

SUPERFICIE TOTAL: 160 m2

PLANTAS: Nivel 1, Tapanco, Nivel 2

BAÑOS: 2

GARAGE: 0

JARDÍN O TERRAZA: 2 Terrazas

AMENIDADES Y EQUIPAMIENTO: Cocina equipada y barra, internet, agua, luz, mobiliario y tv

PET FRIENDLY: Si

ANTIGÜEDAD: 2016

d