FONTAN REFORMA 3

Descripción

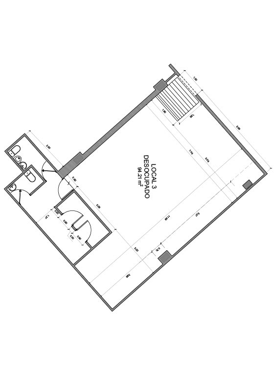
Local comercial ubicado en la Planta Baja del Hotel Fontan Reforma, con frente hacia la Avenida Reforma, tiene una superficie de 94.21 metros cuadrados, cuenta con los servicios básicos.

CÓDIGO: Desocupado

UBICACIÓN:

SUPERFICIE TOTAL: 94.21 M2

PLANTAS: 1 Nivel

BAÑOS: 2 Nucleos

GARAGE: NA

AMENIDADES Y EQUIPAMIENTO: Agua y Luz

ANTIGÜEDAD: 2017

d