Independencia 46 Local 1 y Local 2

descripción

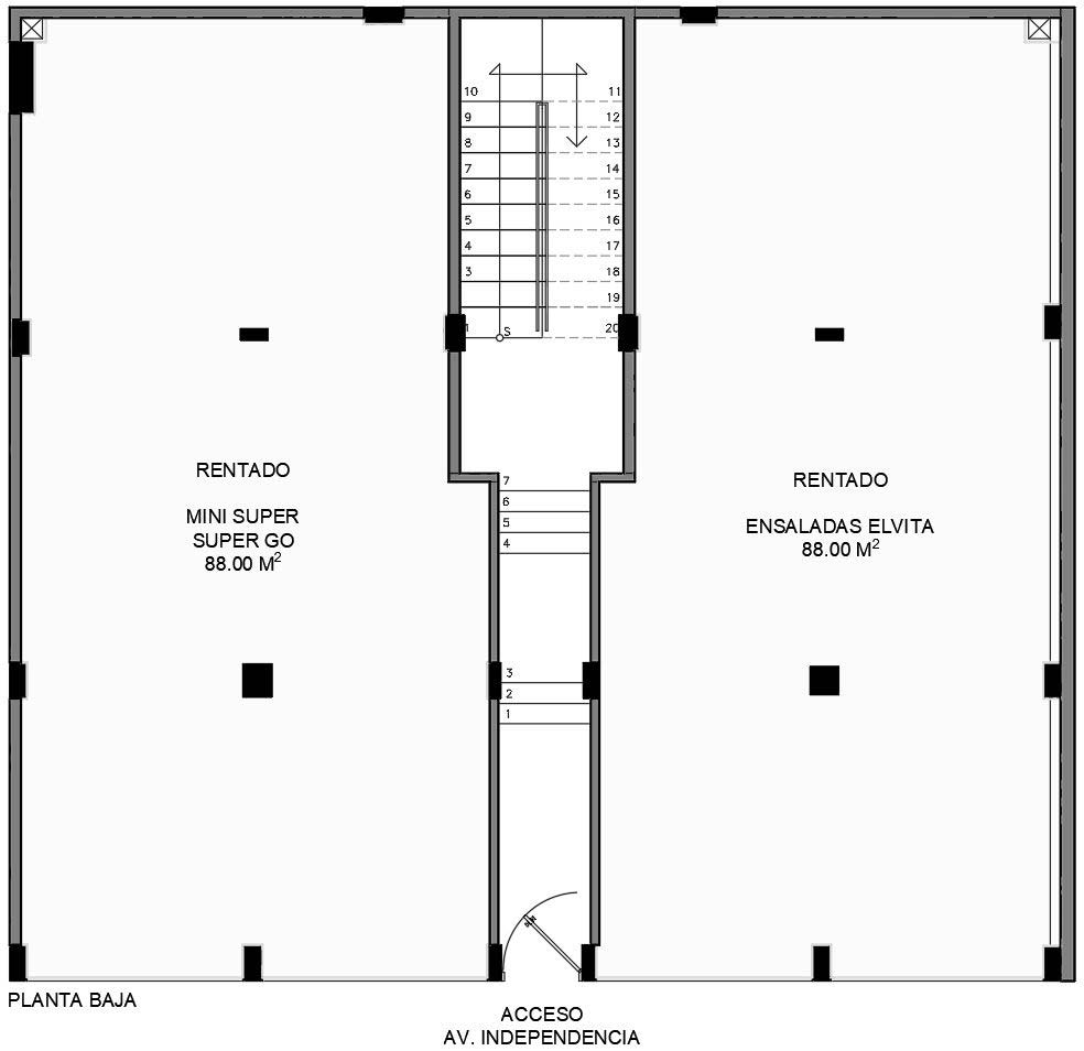
Renta de dos amplios locales comerciales, 88 m2 c/u, buenas posibilidades de distribución, con excelente ubicación en el centro de la ciudad de México, avenida con alto tránsito peatonal y vehicular, la cual conecta el corredor urbano eje central Lázaro Cárdenas con av. Balderas.

Locales ubicados en planta baja con acceso directo a la avenida, frente al edificio de secretaria de relaciones exteriores.

CÓDIGO:

UBICACIÓN: Av Independencia 46, Colonia Centro, Centro, Cuauhtémoc, 06000 Ciudad de México, CDMX

SUPERFICIE TOTAL: 176 m2 de dos locales – 88 me por local

PLANTAS: Pla/uunta Unica – Planta Baja de edificio

BAÑOS: 1 c/u

GARAGE: No

AMENIDADES Y EQUIPAMIENTO: No

ANTIGÜEDAD: 2019

d